价格:35万元
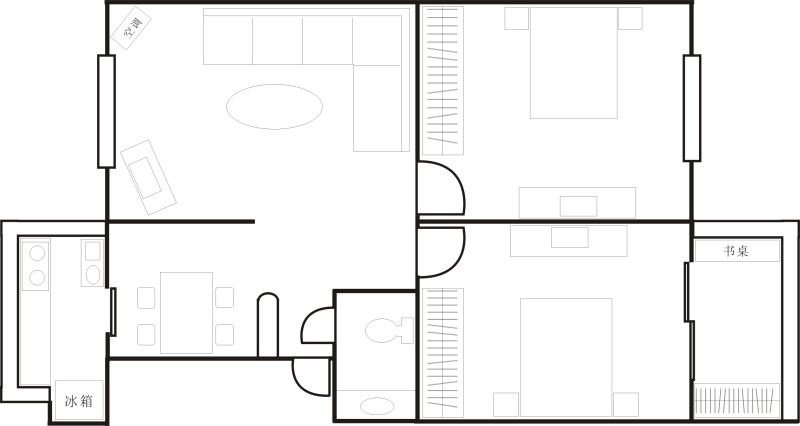
居室:2室
面积:75㎡
具体位置:西安市交通运输管理处家属院
位于西门外,从南小巷或者八佳巷和丰庆路、劳动南路均可进入,户型2室2厅1厨1卫,面积75平米,纯板式结构南北通透,由于是单位家属院,所以无房产证(可找律师事务所公证),交通便利:周围公交线路多达60余条,生活便利;周边大型超市,菜市场等步行5分钟即到,附近有幼儿园、小学、中学、大学,更有知名学府西北大学、西工大等高等学府环绕,房屋内部水、电、天然气、暖气、网络等一应俱全,简单装修,家具电器齐全,可拎包入住,绝对的实惠房、实用房,有意者可直接与我联系,真心购买,价格好商量!